Źródło: kolaż
Czasami przy zakupie nowego mieszkania od dewelopera przez pewien czas jest możliwość wprowadzania poprawek do układu ścian, podłączeń hydraulicznych czy elektrycznych. Zależy to głównie od stanu zaawansowania prac budowano-wykończeniowych i indywidualnych warunków, jakie oferuje sprzedający.
Czasami przy zakupie nowego mieszkania od dewelopera przez pewien czas jest możliwość wprowadzania poprawek do układu ścian, podłączeń hydraulicznych czy elektrycznych. Zależy to głównie od stanu zaawansowania prac budowano-wykończeniowych i indywidualnych warunków, jakie oferuje sprzedający.
Czemu możliwosć wprowadzenia zmian jest taka istotna?
Poniżej kilka przemyśleń na ten temat:
Poniżej kilka przemyśleń na ten temat:
- mieszkanie może być bardziej dopasowe do naszych aktualnych/ przyszłych potrzeb związanych z liczbą członków rodziny, upodobaniami czy chociażby ilością przestrzeni do przechowywania;
- wprowadzone przez samego dewelopera zmiany są objęte gwarancją, która obejmuje nowo zakupione mieszkanie; zmiany wprowadzone przez nas w trakcie trwania okresu gwarancyjnego powodują często utratę gwarancji;
- w kuchni możemy zawczasu wprowadzić zmiany dotyczące ilości i umiejscowienia sprzętów AGD (piekarnik, zmywarka, lodówka, płyta gazowa lub elektryczna). Przemyślenie tej kwestii jest szczególnie istotne, gdy planujemy sprzęty "nadprogramowe" jak mikrofala, chłodziarka do win, oddzielna zamrażarka, itp., które wymagają dodatkowych podłączeń/ gniazdek;
- w łazience możemy uzyskać bardziej estetyczne rozwiązania (pralka w szafie lub zakryta pod blatem często wiąże się ze zmianą pierwotnych podłączeń hydralicznych) oraz uniknąć marnowania przestrzeni, która mogłaby służyć jako miejsce do przechowywania brudownika, kosmetyków czy środków czystości;
- dzięki ingerencji w pierwotny układ mieszkania możemy wygospodarować dodatkową przestrzeń na garderobę czy miejsce do pracy;
W celu lepszego zilustrowania jak wiele można osiągnąć, dzięki zmianie układu mieszkania, posłużę się rzutem mieszkania moich znajomych, który kupili je od dewelopera. Mieszkanie (łącznie z loggią) ma 61,6 mkw.
Poniżej trzy przykłady, jak indywidualne potrzeby kupujących mogą wpłynąć na układ mieszkania.
W kolejnych postach dokładniej zaprezntuję każdy z wariantów.
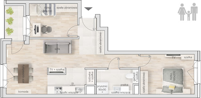
Wariant 1- dla pary
Cechy tego rozwiązania:
- część wejściowa z szafami ubraniowymi/ gospodarczymi (jedna z szaf posiada dekoracyjne siedzisko);
- bardzo przestronna część dzienna z aneksem oddzielonym dekoracyjnym barkiem;
- łazienka z podświetlaną wnęką pod prysznicem i dużą iloscią szafek/schowków;
- sypialnia małżeńska ze średniej wielkości łóżkiem, dużą szafą ubraniową i TV; przy wejściu znajdują się dekoracjne półki;
Wariant 2- dla rodziny z jednym dzieckiem
Cechy tego rozwiązania:
- przestronny pokój dzienny z aneksem kuchennym, częścią wypoczynkową i miejscem na rozkładany stół (na większą ilość osób);
- wygodna łazienka z prysznicem, pralką schowaną pod blatem i dużą ilością szafek/ schowków;
- sypialnia małżeńska ze średniej wielkości łóżkiem, dużą szafą ubraniową i TV;
Wariant 3- dla rodziny z dwójką dzieckiem
Cechy tego rozwiązania:
- sypialnia małżeńska zlokalizowana blisko pokoju dziennego; duża szafa ubraniowa z miejscem do pracy;
- przestronny pokój dzienny z aneksem i stołem łączącym się z blatem kuchennym;
- łazienka z wanną i parawanem nawannowym; pralka znajduje się w wysokiej szafie wnękowej;
- pokój dziecięcy z dużą szafą ubraniową, miejscem do przechowywania zabawek i książek, miejscem do zabawy i piętrowym łóżkiem;
Na koniec kilka pytań, które warto sobie zadać, jeśli zastanawiamy się, czy układ zakupionego mieszkania będzie w pełni odpowiadał naszym potrzebom.
ILOŚĆ POMIESZCZEŃ
- czy ilość pomieszczeń jest wystarczająca pod względem obecnych/ planowanych członków rodziny?
- czy potrzebujemy dodatkowego miejsca do pracy?
PRZECHOWYWANIE
- ile potrzebujemy miejsca do przechowywania (czy są to głównie ubrania, książki, sprzęt sportowy, itp.)?
- czy potrzebujemy garderoby?
OŚWIETLENIE/ ELEKTRYKA
- czy miejsce i ilosć wypustów sufitowych odpowiadają naszym potrzebom?
- czy planujemy podświetlane sufity podwieszone/ wnęki?
- czy planujemy kino domowe, głośniki, itp.
- czy planujemy dodatkowe oświetlenie w szafach?
KUCHNIA
- jakich sprzętów AGD potrzebujemy (lodówka, zamrażarka, zmywarka, piekranik, mikrofalówka, ekspres, chłodziarka do win/ napojów, szuflady grzewcze, itp.)?
- czy dużo gotujemy (może mieć to wpływ na ilość potrzebnego blatu roboczego)?
- planujemy sprzęty w zabudowie czy wolnostojące?
- jakie oświetlenie przestrzeni roboczej podoba nam się najbardziej (oświetlenie LED, halogeny, inne)?
- czy często używamy dodatkowych sprzętów (miksery, roboty, blendery, Thermomix, itp.)?
odpowiedź na to pytanie może wskazywać, czy ilość gniazdek jest wystarczająca
ŁAZIENKA
- wolimy wannę z parawanem nawannowym czy prysznic?
- planujemy pralkę wolnostojącą czy w zabudowie?
- czy w łazience będzie wystarczająco dużo miejsca na kosmetyki, środki czystości i kosz na pranie?





Ten komentarz został usunięty przez autora.
OdpowiedzUsuńU nas ogólnie w domu będzie wymiana okien na nieco inne i całkowicie zmieniamy firmę, która tymi oknami będzie się zajmowała. Ostatnio sporo szukałem w Internecie informacji na ten temat, i udało się rozwiać wątpliwości. Już nie musisz błądzić i tracić czas na szukanie odpowiedzi na twoje pytania, bo zrobiłem to za Ciebie! Wystarczy że wejdziesz w tę stronę www a dowiesz się więcej https://www.framex.pl/ . Okna od nich to rewelacja! Mają mnóstwo dobrych opinii, co świadczy o tym, że na pewno warto wybrać właśnie ich usługi.
OdpowiedzUsuń